Spacious house with modern architecture at the foot of Vitosha Mountain, Bistritsa village

€980,000 / BGN 1,916,713

L’Artista presents: An exclusive home with panoramic views and uncompromising quality

Ref. No.: 104

We are pleased to present you an exceptional home offering privacy and tranquility away from the hustle and bustle of the city.

The property features spacious, light-filled rooms and inspiring mountain views.

Plot area: 855 sq.m

Technical specifications and energy efficiency:

The house has been designed and built to the highest contemporary standards and has an A+ energy certificate.

  • Air conditioning: Highly efficient heating and cooling system with two heat pumps.

  • Sustainability: Solar collectors installed for domestic hot water.

  • Autonomy: Own independent water source, ensuring uninterrupted supply in case of interruptions in the central network.


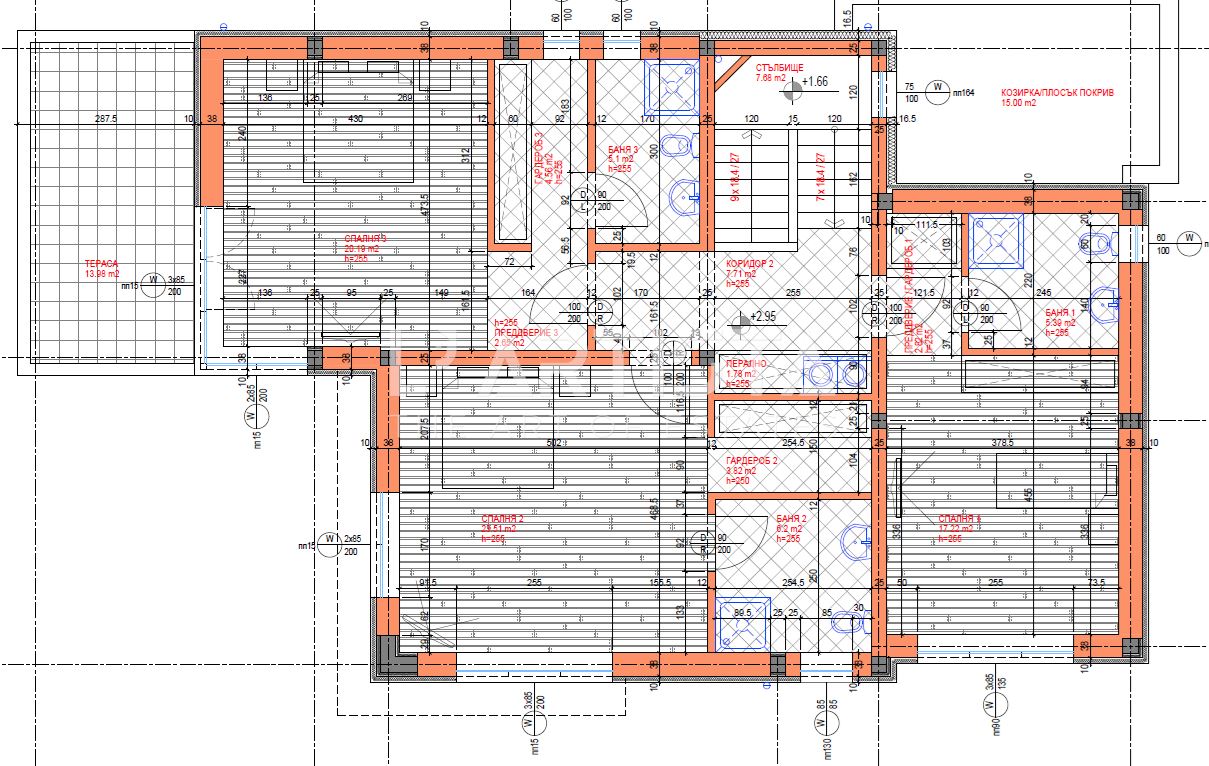
Distribution:

  • Basement:

  • Garage for two cars, boiler room, laundry room, storage rooms, sauna room.

  • Ground floor:

  • Spacious living room with dining area and kitchen, study (with possibility for a fourth bedroom) and bathroom with toilet.

  • First floor:

  • Three spacious bedrooms, one of which has a panoramic terrace, each with a bathroom, toilet, and wardrobe, a hallway with space for a washing machine and dryer.


Advantages:

  • ***The house is offered fully furnished and equipped with high-end furniture and appliances***

  • ***Put into operation – with Act 16***

  • ***Excellent infrastructure and quick access to the city***

  • ***Suitable for both year-round living and as a vacation home***

Thanks to L'Artista's professional home staging, you can see the property in its best light—ready to welcome its new owner.

L'Artista is the first agency in Bulgaria that offers not only real estate brokerage services, but also a wide range of financial services—loans, insurance, investment funds, pension insurance, and others—that ensure stability for your future.

Find everything you need for your real estate and financial security in one place!

request a viewing

Similar properties

We will contact you

Send an inquiry

Apartment No. {{apartment_no}} of {{property_title}}

Тип: {{estate_type}}

Цена: {{price}}

Обадете ни се и посочете този код: {{property_code}}