L’Artista представя нова модерна жилищна сграда в кв. Овча купел – пред Акт 16
Код : 871
Специална схема на плащане:
Плати 10% сега и остатъка след Акт 16!
Очаквано въвеждане в експлоатация: лято 2026 г.
Представяме Ви нов жилищен проект, разположен в старата част на кв. Овча купел, на ул. „Народно хоро“, в непосредствена близост до ул. „Монтевидео“, бул. „Овча купел“, Нов български университет и метростанция.
Локацията предлага спокойна жилищна среда, съчетана с отлична инфраструктура, бърз достъп до центъра и удобни транспортни връзки до всички части на София.
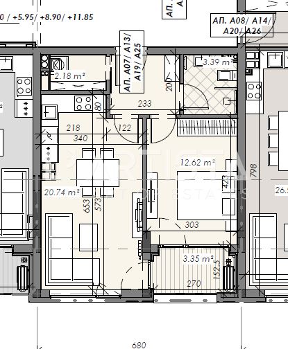
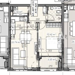
Апартаментът се състои от :
Всекидневна с кухненски бокс
Спалня
Баня с тоалетна
Склад
Антре
Тераса
Основни предимства:
✔ Отлична локация в развиващ се район
✔ Гъвкава схема на плащане
✔ Висок клас строителство и материали
✔ Подходящ както за живеене, така и за инвестиция
✔ Модерна визия и функционални разпределения
За да предоставим най-доброто преживяване, използваме технологии като бисквитки, за да съхраняваме и/или осъществяваме достъп до информация от устройството. Съгласяването с тези технологии ще ни позволи да обработваме данни като поведението при сърфиране или уникални идентификатори на този сайт. Несъгласието или оттеглянето на съгласие може да се отрази неблагоприятно на определени функции и възможности.
Тип: {{estate_type}}
Цена: {{price}}
Обадете ни се и посочете този код: {{property_code}}