Предлагаме Ви просторен четиристаен апартамент, в луксозна тухлена сграда с акт 16 от 2025 година.
Цената е без ДДС
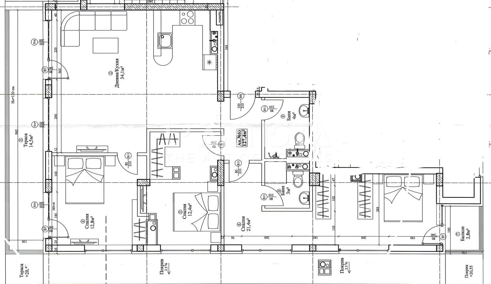
Разпределение:
• Входно антре
• Баня с тоалетна
• Просторен хол с трапезария и кухненски бокс
• Три самостоятелни спални, като едната от тях разполага със собствена баня с тоалетна и коридор.
• Целият апартамент е обграден от панорамна тераса, достъпна от всички стаи, което създава усещане за изключителен простор и светлина.
Характеристики:
• 145,17 кв.м
• Етаж: 8 от 9
• Изложение: Изток, Североизток, Север, Северозапад
• Строителство: Тухла, 2025 г.
• Състояние: Завършен до ключ – висококачествени настилки, напълно завършени бани и санитарни възли
• Отопление: ТЕЦ и изводи за климатици във всяка стая
• Без обзавеждане – готов за лично проектиране според вкуса Ви
• Възможност за закупуване на паркомясто – цена 25 000 € без ДДС
В сградата се предлагат още няколко апартамента.
Предимства:
• Панорамни гледки към Витоша, Плана и Стара планина
• Предстоящ спортен комплекс със зони за отдих и тенис кортове точно зад сградата
• Тиха, но комуникативна локация
• Само на 8 минути пеша от метростанция Бизнес парк
• В близост: Лидъл, Била, Фантастико, детски градини, училища и спирки на градски транспорт
• На 3 минути от Околовръстен път – бърз достъп до всяка точка на София
L’Artista е първата агенция в България, която предлага не само
посредничество при покупко-продажба на недвижими имоти, но
и широк спектър от финансови услуги – кредитиране,
застраховане, инвестиционни фондове, пенсионно
осигуряване и други, които осигуряват стабилност за Вашето
бъдеще.
Намерете всичко, от което се нуждаете за вашите имоти и
финансова сигурност на едно място!
За да предоставим най-доброто преживяване, използваме технологии като бисквитки, за да съхраняваме и/или осъществяваме достъп до информация от устройството. Съгласяването с тези технологии ще ни позволи да обработваме данни като поведението при сърфиране или уникални идентификатори на този сайт. Несъгласието или оттеглянето на съгласие може да се отрази неблагоприятно на определени функции и възможности.
Тип: {{estate_type}}
Цена: {{price}}
Обадете ни се и посочете този код: {{property_code}}