L’Artista представя многостаен мезонет в една от най-предпочитаните части на Център, на метри от НДК, в непосредствена близост до градина Буката
Реф №: 822
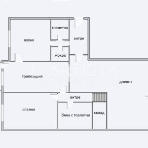
Жилището е разположено на две нива със следното разпределение:
Първо ниво:
-Дневна над 50 кв.м
-Кухня
-Трапезаря
-Спалня
-Баня с тоалетна
-Тоалетна
-Мокро помещение
-Две тераси
Второ Ниво:
-Коридор
-Три непреходни спални
-Баня с тоалетна
-Таванско помещение
Жилището е с площ от 170 кв.м в тухлена сграда от 80-те години.
Отопление-ТЕЦ
Осигурено паркиране във вътрешен двор
За повече информация и огледи, не се колебайте да се свържете с нас!
За да предоставим най-доброто преживяване, използваме технологии като бисквитки, за да съхраняваме и/или осъществяваме достъп до информация от устройството. Съгласяването с тези технологии ще ни позволи да обработваме данни като поведението при сърфиране или уникални идентификатори на този сайт. Несъгласието или оттеглянето на съгласие може да се отрази неблагоприятно на определени функции и възможности.
Тип: {{estate_type}}
Цена: {{price}}
Обадете ни се и посочете този код: {{property_code}}